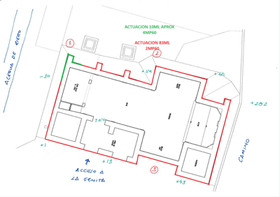
A intervenção de consolidação foi realizada injetando resina Uretek Geoplus no terreno de suporte dos muros de carga com o objetivo de melhorar os parâmetros de resistência. A zona intervencionada foi de 93 ml, correspondente ao perímetro total da ermida.
PROBLEMA
Devido ao assentamento que a estrutura apresentava, determinado através de uma medição topográfica de alta-definição com scanner laser fornecida, chegando a ser de 60 cm em relação à horizontal no ponto mais desfavorável. Foi necessário realizar uma intervenção para consolidar o terreno de fundação sob os muros de carga perimetrais da ermida.
Porque é que a solução Uretek foi escolhida:
- Rapidez: planeamento e calendarização cuidadosa dos tempos de execução que permitiram que o trabalho fosse concluído num curto espaço de tempo;
- Preços competitivos;
- Intervenção minimamente invasiva: a intervenção proposta pela Uretek não exigiu nenhum trabalho de escavação ou alvenaria, não produziu sujidade ou resíduos;
- Monitorização laser de alta precisão: tanto durante como após a intervenção, os trabalhos foram sujeitas a monitorização em tempo real utilizando tecnologia laser de última geração e pessoal altamente qualificado;
- Aplicação da tecnologia exclusiva Uretek Deep Injections® que, graças à injeção de resina expansiva Uretek Geoplus® com elevada capacidade de expansão, compacta o solo e estabiliza as estruturas.
- Respeito pelo ambiente: a mistura de resinas Uretek® gera um produto final inerte que não liberta resíduos no solo ou nos aquíferos presentes.
SOLUÇÃO
Para resolver o problema optou-se por uma tecnologia pouco invasiva e de rapidez de execução: Uretek Deep Injections® com injeções de resina expansiva Uretek Geoplus®.
O resultado da intervenção foi verificado através de monitorização laser durante as injeções, bem como com a execução de ensaios de penetração dinâmica, tanto antes como depois da intervenção (evidência da melhoria da capacidade de carga do terreno intervencionado).
Foram tratados um total de 93 ml dos muros de suporte da ermida durante a intervenção.
O PROJETO EM DETALHE

A ermida, construída no século XVII, apresenta uma planta em cruz latina composta por uma única nave.
A fundação da ermida é sustentada através de muros de suporte de composição variável, à base de alvenaria de pedra e de tijolo, com uma espessura de 80 cm. Após os primeiros ensaios realizados detetou-se o suporte da fundação no terreno a uma cota de 1,50-1,70 m.
O subsolo da zona é composto por uma sucessão de níveis gipsíferos e fácies argilosas de espessura variável.
A ermida apresentava fissuração principalmente localizadas nas orientações norte e oeste.
A intervenção consistiu na melhoria do terreno a uma profundidade variável entre 2 e 4 metros sob a fundação da ermida composta por muros de suporte e realizada em todo o seu perímetro. O dimensionamento foi determinado e consensualizado com a empresa geotécnica responsável pela elaboração do estudo geotécnico.








